Autentifică-te pentru acces rapid la cele mai bune afaceri. Click aici dacă nu ai deja un cont deschis.
  • 12 noiembrie 2023 7:48
  • Altele
  • Braşov
  • 147 vizualizări
Referinţă: 62673

Localitate: Braşov

Preț: 172.30 lei

Cauți O CASĂ sau ”ACASĂ” pentru tine și familia ta?

În Avantgarden3, ne-am orientat toate planurile, previziunile și eforturile spre a crea o comunitate, în care sentimentul de ”acasă” să fie îmbrățișat de către toți cei care fac parte din familia noastră.

Boxă la demisol inclusă în preț. Prețul afișat este pentru plata integrală. Preţul final al locuinţei se va stabili în funcţie de modalitatea de plată aleasă. Prețurile sunt pentru contractare în stadiu de PROIECT. Prețurile NU includ TVA și se va adăuga cota de TVA conform prevederilor legale.

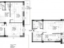
Confort: 1 Tip imobil: Bloc de apartamente Număr Băi: 2 Comision cumpărător: 0% Posibilitate parcare: Da